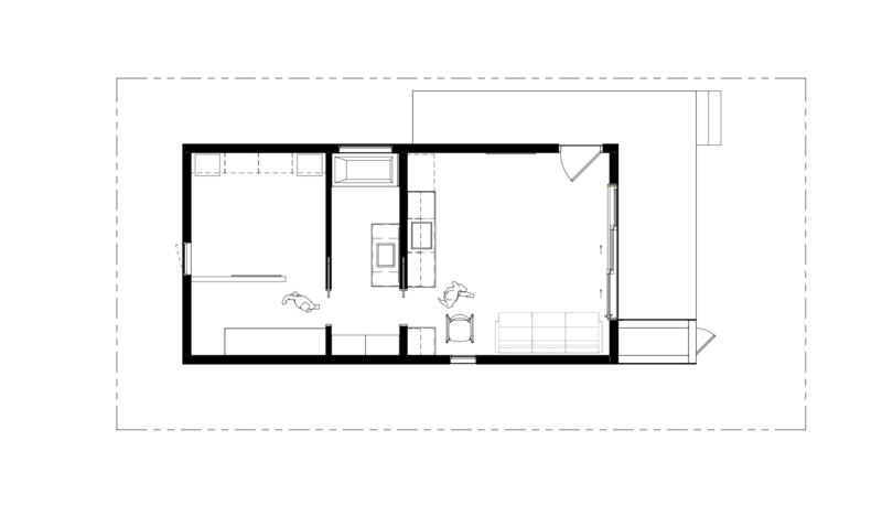
The Sitka proves that small living doesn't mean compromise. This single-level design offers a true one-bedroom layout that provides real privacy and separation - no living room that doubles as your bedroom here. The galley kitchen maximizes efficiency, while expansive windows and soaring 16-foot vaulted ceilings create an unexpected sense of volume and openness.

The living area is spec'd with a homeowner-favorite, 3-panel operable glass door system that seamlessly extends your space onto the covered porch, blurring the line between indoors and out. Creative storage solutions ensure everything has its place, while the full bathroom includes space for a proper tub - a rare find in designs under 500 square feet.

Perfect as a backyard cottage, rental unit, or a tiny-home inspired primary residence, the Sitka plan offers flexibility for a wide range of uses. The optional bike box provides even more convenient outdoor gear storage. Every detail has been carefully considered to maximize comfort, function, and livability in an efficient footprint.

The Hiatus sikta

Starting at $1550

*By purchasing, you've read the "Need to Know" section below and you're agreeing to all Terms & Conditions Listed HERE

Plan Details

—  465 Livable Square Feet 
—  One-Story Dwelling Unit with One Bedroom, One Bathroom and a Full Kitchen
—  Overall Dimensions: 16'W X 32'D X 18'H
(Excluding Roof Overhangs and Optional Deck)

Specifications:

What's Included

Our architectural plan sets provide everything you need to bring your small home vision to life. Each set includes comprehensive architectural drawings: floor plans, elevations, sections, and a detailed ceiling plan with lighting layouts and switching diagrams.

Designed to meet generally adopted residential building codes, these plans give you a professional foundation to work from, whether you're building an ADU, cottage, or standalone small home. Available as print-ready PDFs or editable CAD files (.dwg), they're created to streamline coordination with your contractor and local professionals. Think of them as your project's blueprint, saving you time and giving you confidence from concept through construction.

Sample Plan Set Example (partial set) 

FAQ

Who are these plans right for? 
Our plans are a great fit for homeowners who want to add a small cottage or ADU to their property, as well as builders and developers looking for efficient, modern small-home designs. They provide a strong architectural  foundation, but projects may still need local professionals - like civil or structural engineers, contractors, and permitting consultants - to adapt 
the plans to your site, meet local codes, and guide you through construction.

How much will it cost to build my plan?
Building costs vary widely depending on location, labor, materials, and permitting. Contact a local general contractor for an estimate. Nationally, the cost to build an ADU or tiny home can range anywhere from $100,000 - $300,000+

What are the plan set options?
Plan set options include:
  • PDF — ready to print
  • CAD (.dwg) — editable files for design professionals
  • Readable reverse — mirrored set for alternate orientation

What additional add-ons can I purchase with my order?
Many plans have optional add-ons such as reversed orientations, garage options, CAD files, or multi-build licenses. Click "Purchase Now" to see options available with a specific plan. We also offer plan customizations, custom foundations, and site plans for an additional fee — contact us for details.

How can I make changes or modifications to one of your house plans?
We offer free, no-obligation modification quotes. Submit your request using this form, and we'll provide estimated pricing and a timeline (usually within 1–3 business days).

Will your plans meet my local building codes?
Our plans are drawn to meet generally adopted residential building codes at the time of design. Local codes may vary, and additional modifications may be required for compliance in your jurisdiction.

Are plans ready to submit to my building department for permitting?
The plans contain sufficient information to build the home. However, most municipalities require additional documents such as a site plan, structural engineering, or energy compliance reports before issuing a permit.

Do I own the copyright to the plans?
No. Copyright remains with Hiatus. Purchasing a plan grants you a license to build as specified, but resale, distribution, or redistribution of the plan is prohibited.




How is square footage calculated?
Each plan set includes an area calculations sheet that explains the methodology and shows boundary lines with areas subtotaled by level.

Do you offer in-person consultations?
Yes, for an additional cost. We are located in Bend, Oregon, so travel logistics may limit availability outside our region.

Can you assist with remodels or additions for existing structures? 
We are unable to assist with additions or remodels for existing homes. We recommend working with a local general contractor. 

Can I build the plans in reverse? 
Yes — most plans can be ordered with a readable reverse option.

Do you provide a list of materials?
We do not provide full material lists or takeoffs. Instead, each plan set includes finish floor plans along with partially completed finish, fixture, and appliance schedules for you to fill in with your personal selections. We also include a ceiling plan with lighting layout with switching diagram to help guide coordination with your contractor.

Can you provide example CAD files so we can confirm compatibility?
CAD files are delivered in standard .dwg format. Sample files can be requested for compatibility testing. 

What are the different foundation options?
Most common options are:
  • Slab-on-grade
  • Footings and stemwall with crawl space

Are your plans designed as modular homes?
Our plans are not designed for modular construction or building kits. These are intended to be stick-built on your site or property and affixed to a foundation. 

Can I make changes to my order post-purchase?
Please contact us for custom changes.

Can I see a build in person?
Due to privacy, we cannot share addresses of private builds. However, we occasionally host open houses at projects built on our own land — contact us for availability.

What is your return policy?
All plan purchases are final. No refunds or exchanges.

A standard license covers ONE construction build at ONE site. Multi-build licenses (up to 4 builds) are available. For larger developments, we do work with developers on community-scale projects - please contact us to learn more. 

Because site conditions and requirements vary by jurisdiction, certain details must be obtained locally. Plans do not include:
  • Structural engineering calculations, drawings, stamps
  • Mechanical system design (HVAC equipment and ductwork)
  • Plumbing pipe sizing and layout drawings

Each plan includes architectural drawings such as floor plans, elevations, sections, and schedules.

 Your plans will arrive via a digital download either as a PDF or CAD (.dwg) file. Some plans are available for immediate download, other digital sets can take 1-2 Business Days.


Due to the digital nature of this product, purchased plans cannot be returned or exchanged. 

what to know before you buy